Мобилен подемник за лодки
Мобилният подемник за лодки е специализирано оборудване, предназначено за повдигане и транспортиране на лодки, яхти или други плавателни съдове от едно място на друго в рамките на яхтено пристанище или корабостроителница. Този тип подемник осигурява удобно и ефикасно решение за боравене и поддръжка на лодки, позволявайки лесен достъп до плавателни съдове за ремонт, поддръжка или съхранение.

Основни функции
Мобилните подемници за лодки са специализирано повдигащо оборудване, предназначено за манипулиране и транспортиране на лодки и яхти в рамките на яхтени пристанища и яхти. Основните характеристики на мобилните подемници за лодки включват:
- Обхват на капацитета: Мобилните подемници за лодки се предлагат в различни мощности за работа с различни размери на лодки. Капацитетът обикновено се определя по отношение на максималното тегло на повдигане, което побира малки лодки до големи яхти.
- Универсалност: Тези телфери са многофункционални и могат да се използват за различни цели, включително пускане, изваждане и преместване на лодки в рамките на яхтено пристанище или корабостроителница. Те могат да се справят с различни видове и размери лодки.
- Мобилност: Оборудвани с колела или вериги, мобилните подемници за лодки са лесно преместваеми в рамките на яхтеното пристанище или двора за лодки. Някои модели може да имат функция за самозадвижване за по-добра маневреност.
- Повдигащ механизъм: Подемникът използва надежден повдигащ механизъм, задвижван от електричество, хидравлика или комбинация от двете системи. Този механизъм включва сапани, ремъци или повдигащи рамена за сигурно задържане и повдигане на лодката.
- Контролна система: Лесна за употреба система за управление е интегрирана в подемника, позволяваща на операторите да контролират прецизно повдигане, спускане и движение. Това може да включва контролен панел с бутони, лостове или цифров интерфейс.
- Функции за безопасност: Безопасността е основен приоритет и мобилните подемници за лодки са оборудвани с различни функции за безопасност, включително:
■Бутони за аварийно спиране за незабавно спиране на операциите.
■Защита от претоварване за предотвратяване на повдигане над капацитета на подемника.
■Сигурни заключващи механизми за сапани или ремъци.
■Звукови и визуални аларми за предупреждение на операторите и минувачите.
- Адаптивност към различни плавателни съдове: Мобилните подемници за лодки са проектирани да поемат различни видове плавателни съдове, като платноходки, моторни лодки и яхти. Дизайнът може да включва регулируеми сапани или рамена, за да пасне на конкретната форма на корпуса.
- Издръжливост и конструкция: Изработени от здрави материали като стомана или алуминий, мобилните подемници за лодки са конструирани да издържат на морска среда и тежка употреба. Рамката и компонентите са проектирани за издръжливост и дълголетие.
- Устойчивост на атмосферни влияния: Мобилните подемници за лодки често са изградени с характеристики, устойчиви на атмосферни влияния, за да издържат на излагане на солена вода, дъжд и други условия на околната среда, които обикновено се срещат в морската среда.
- Лесна поддръжка: Производителите проектират тези подемници с мисъл за лесна поддръжка. Те могат да осигурят достъпни сервизни точки, ясни насоки за поддръжка и услуги за поддръжка, за да осигурят постоянна надеждност на оборудването.
- Дистанционна работа (по избор): Някои модерни мобилни подемници за лодки предлагат възможности за дистанционно управление, което позволява на операторите да контролират подемника от разстояние. Това може да подобри безопасността и прецизността по време на манипулации с лодка.
- Опции за персонализиране: Производителите могат да предложат опции за персонализиране, за да отговорят на специфични изисквания на клиента, като например адаптиране на подемника за уникален дизайн на лодка или интегриране на допълнителни функции.

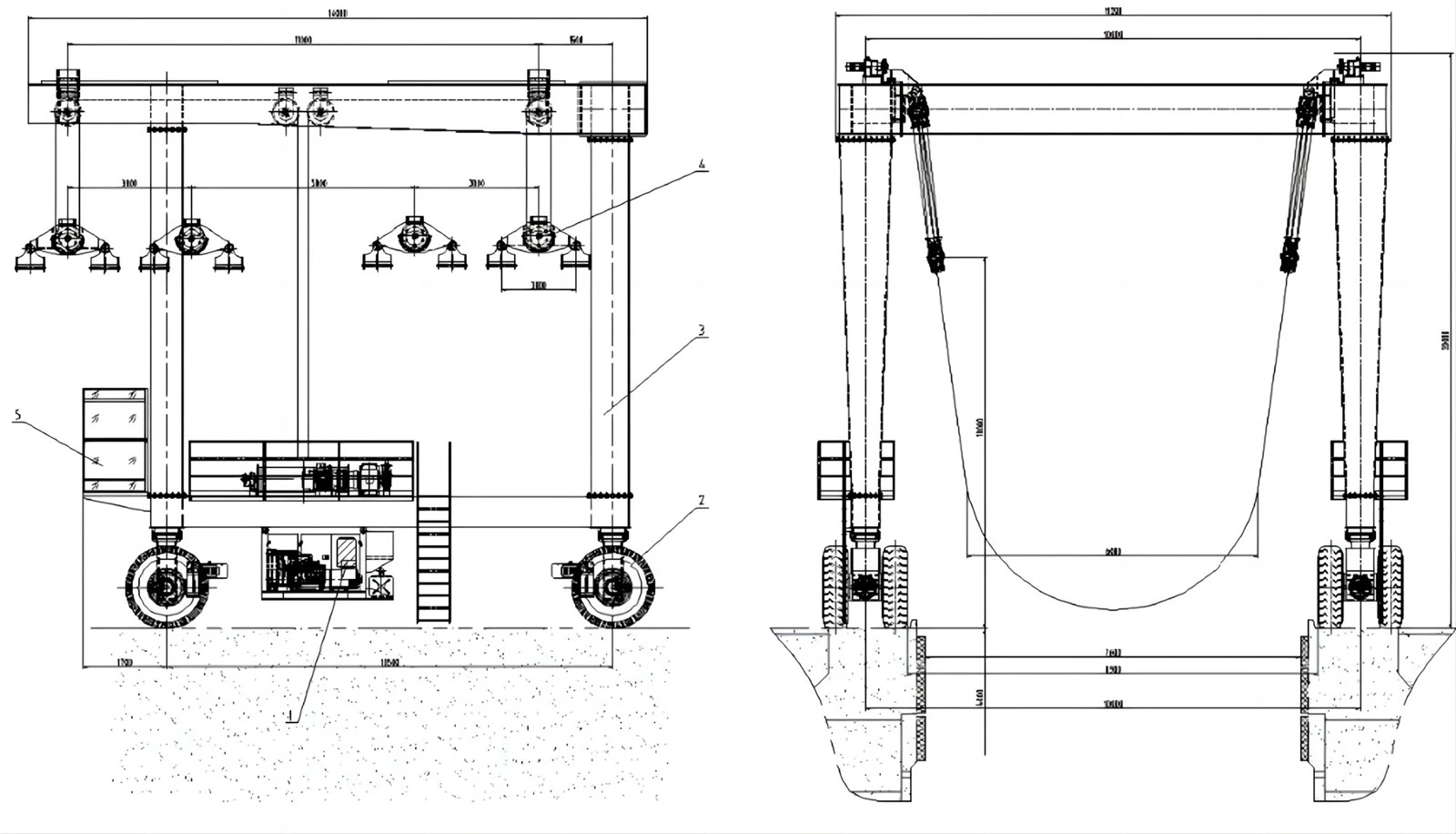
Части и компоненти
Мобилният подемник за лодки е сложна машина и се състои от няколко ключови части и компоненти, които работят заедно за повдигане, транспортиране и обработка на лодки. Ето преглед на основните части и компоненти на типичен мобилен подемник за лодки:
- Кадър: Рамката формира структурния скелет на подемника, осигурявайки опора и стабилност. Обикновено се изработва от издръжливи материали като стомана или алуминий. Конструкцията на рамката взема предвид капацитета за носене на тегло и цялостната стабилност на подемника.
- Повдигащ механизъм: Механизмът за повдигане отговаря за повдигането и спускането на лодката. Може да се задвижва от електрически двигатели, хидравлични системи или комбинация от двете. Този механизъм често включва лебедки, макари или цилиндри, които са свързани към сапани, ленти или повдигащи рамена.
- Ремъци или презрамки: Сапаните или ремъците са компонентите, които влизат в пряк контакт с корпуса на лодката. Те са прикрепени към повдигащия механизъм и са отговорни за равномерното разпределение на товара по време на повдигане. Сапаните обикновено са направени от здрави и издръжливи материали, за да осигурят безопасно и сигурно повдигане.
- Колела или вериги: Мобилните подемници за лодки са оборудвани с колела или вериги за улесняване на движението по земята. В зависимост от дизайна, това могат да бъдат конвенционални колела или специализирани морски колела. Някои подемници са самоходни, което позволява лесна навигация в рамките на яхтеното пристанище или лодкостроителницата.
- Контролна система: Системата за управление позволява на оператора да управлява повдигането, спускането и движението на подемника за лодка. Включва контролен панел с бутони, лостове или цифров интерфейс. Системата за управление е от решаващо значение за осигуряване на прецизност и безопасност по време на манипулации с лодка.
- Функции за безопасност: Различни функции за безопасност са интегрирани в подемника за защита срещу инциденти и повреда на оборудването. Те могат да включват бутони за аварийно спиране, защита от претоварване, звукови аларми, визуални индикатори и сигурни заключващи механизми за сапани или ремъци.
- Източник на захранване: Източникът на енергия осигурява енергията, необходима за работата на повдигащия механизъм. Мобилните подемници за лодки обикновено се задвижват от електричество или хидравлични системи. Електрическите подемници често се използват за по-малък капацитет, докато по-големите подемници могат да разчитат на хидравлична мощност за тяхната здравина и надеждност.
- Дистанционно: Някои мобилни подемници за лодки са оборудвани с възможности за дистанционно управление, което позволява на операторите да контролират подемника от разстояние. Дистанционното управление може да подобри безопасността и прецизността по време на манипулации с лодка.
- Компоненти, устойчиви на атмосферни влияния: Като се има предвид морската среда, много компоненти са проектирани да бъдат устойчиви на атмосферни влияния, със защитни покрития и материали за предотвратяване на корозия и разграждане от излагане на солена вода и други фактори на околната среда.
- Аксесоари: В зависимост от производителя и специфичните изисквания, мобилните подемници за лодки може да се доставят с допълнителни аксесоари или функции, като регулируеми рамена за различни форми на корпуса, осветление за нощни операции или персонализирани приспособления за специализирани задачи.

Параметри на продукта

Скица

Предимства
Мобилните подемници за лодки предлагат няколко предимства за яхтени пристанища, площадки за лодки и крайбрежни съоръжения, участващи в обработката и поддръжката на лодки. Ето някои ключови предимства от използването на мобилни подемници за лодки:
- Универсалност: Мобилните подемници за лодки са универсални и могат да се справят с широка гама от размери и типове лодки. Те са подходящи за повдигане и преместване на лодки с различни форми и тежести, което ги прави адаптивни към разнообразните нужди на яхтените пристанища и лодките.
- Космическа ефективност: Мобилните подемници за лодки не изискват постоянна инфраструктура като фиксирани кранове или асансьори за лодки. Това ги прави пространствено ефективно решение, което позволява на яхтените пристанища да увеличат максимално използването на наличното пространство за други цели.
- Маневреност: Оборудвани с колела или вериги, мобилните подемници за лодки са много маневрени. Някои модели дори са самоходни, което позволява на операторите лесно да се придвижват през тесни пространства в рамките на яхтеното пристанище или лодкостроителницата.
- Рентабилен: В сравнение с фиксираната инфраструктура, мобилните подемници за лодки често са по-рентабилни за инсталиране. Те не изискват обширна конструкция или значителни модификации на съоръжението, което ги прави по-икономичен избор за управление на лодки.
- Времева ефективност: Мобилните подемници за лодки позволяват бързо и ефективно спускане, изваждане и транспортиране на лодки. Това може значително да намали времето за изпълнение на рутинна поддръжка, ремонти и други дейности, свързани с лодката.
- Адаптивност към различни терени: Мобилността на тези подемници им позволява да работят на различни терени, включително чакъл, бетон или дори неравни повърхности. Тази адаптивност е особено ценна в места с разнообразен ландшафт.
- Работа, независима от времето: Мобилните подемници за лодки са проектирани да работят при различни метеорологични условия, което позволява целогодишно боравене с лодки. Това гарантира, че операциите по поддръжка и обслужване могат да продължат дори при лошо време.
- Опции за персонализиране: Производителите често предоставят опции за персонализиране, за да отговорят на специфични изисквания за съоръжения или уникален дизайн на лодка. Тази гъвкавост позволява на съоръженията да приспособят подемника към техните специфични нужди.
- Намалена поддръжка на инфраструктурата: Тъй като мобилните подемници за лодки не разчитат на фиксирана инфраструктура като кранове или асансьори, обикновено се изисква по-малко поддръжка за самото оборудване. Това може да доведе до спестяване на разходи в дългосрочен план.
- Дистанционна работа: Повечето мобилни подемници за лодки се предлагат с възможности за дистанционно управление, което позволява на операторите да контролират подемника от разстояние. Това може да подобри безопасността и прецизността по време на манипулации с лодка.

Приложение
Мобилните подемници за лодки намират разнообразни приложения в морската индустрия, обслужвайки различни нужди, свързани с обработката, поддръжката и съхранението на лодки. Ето някои често срещани приложения на мобилните подемници за лодки:
- Спускане и изваждане на лодки: Мобилните подемници за лодки често се използват за пускане на лодки във водата и изваждането им. Това е ключово приложение в яхтени пристанища и лодки, където лодките трябва редовно да се придвижват и излизат от водата.
- Транспорт с лодка в рамките на яхтено пристанище: Тези подемници се използват за транспортиране на лодки в рамките на яхтено пристанище, особено между различни зони като складови съоръжения, докове за поддръжка и рампи за спускане. Тяхната мобилност позволява ефективно движение на лодка, без да се разчита на фиксирана инфраструктура.
- Текуща поддръжка и ремонт: Мобилните подемници за лодки играят решаваща роля в рутинната поддръжка и ремонти. Като повдигат лодки от водата, те осигуряват лесен достъп до корпуса за задачи като боядисване, почистване, инспекции и ремонт на витла или други подводни компоненти.
- Зимно съхранение: Мобилните подемници за лодки обикновено се използват в яхтени пристанища и лодки за повдигане на лодки от водата за зимно съхранение. Това помага да се предпазят лодките от въздействието на замръзналата вода, растежа на ракообразни раки и други проблеми, свързани с продължителното излагане на природните фактори.
- Транспорт между яхтени пристанища или дворове: Мобилни подемници за лодки с възможности за шосеен транспорт се използват за транспортиране на лодки между различни яхтени пристанища, лодкари или дори по суша, за да достигнат до определени места.
- Инсталации за нови лодки: Когато нови лодки се доставят на яхтено пристанище или дилърство, мобилните подемници за лодки могат да се използват за повдигане на лодките от транспортни съдове и поставянето им във водата или в определени зони за съхранение.

Производствена процедура
- Проектиране и инженеринг: Производственият процес започва с фазата на проектиране и инженеринг. Инженерите работят върху създаването на подробни планове и спецификации за мобилния подемник за лодки. Това включва определяне на товароносимостта, размерите, структурния дизайн и вида на повдигащия механизъм, който ще се използва.
- Избор на материал и изработка: След като проектът е финализиран, материалите се избират въз основа на фактори като здравина, издръжливост и устойчивост на корозия. Рамката и ключовите компоненти обикновено са направени от материали като стомана с висока якост или алуминий. След това тези материали се изрязват, оформят и изработват според спецификациите на дизайна.
- Производство на подемни механизми: Механизмът за повдигане е критичен компонент на подвижния подемник за лодки. В зависимост от дизайна, това може да включва производството на лебедки, макари, хидравлични цилиндри или други компоненти, които допринасят за повдигането и спускането на лодката.
- Производство на компоненти: Други компоненти, като колела, вериги, сапани и елементи на системата за управление, се произвеждат отделно. Тези компоненти често са направени с висока точност, за да осигурят гладка работа и безопасност.
- Повърхностна обработка:За да се предпази подемника от корозивните ефекти на морската среда, компонентите преминават процеси на повърхностна обработка. Това може да включва нанасяне на защитни покрития, като галванизация или специализирани морски бои.
- Сглобяване: След това отделните компоненти се сглобяват според спецификациите на дизайна. Рамката е конструирана и различни компоненти, включително повдигащ механизъм, система за управление, колела или вериги и функции за безопасност, са интегрирани в подемника.
- Контрол на качеството и тестване:Проверките за контрол на качеството се извършват на различни етапи от процеса на сглобяване, за да се гарантира, че всеки компонент отговаря на определените стандарти. След като подемникът е напълно сглобен, той се подлага на строги тестове. Това включва изпитване на натоварване, за да се провери неговия капацитет на повдигане, функционални тестове за системата за управление и тестове за безопасност, за да се гарантира, че всички функции за безопасност работят правилно.
- Инсталиране на допълнителни функции:В зависимост от спецификациите и опциите за персонализиране по време на тази фаза могат да бъдат инсталирани допълнителни функции като възможности за дистанционно управление, регулируеми рамена или специални приставки.
- Окончателна проверка:Провежда се окончателна проверка, за да се гарантира, че целият мобилен подемник за лодки отговаря на стандартите за безопасност, спецификациите на дизайна и изискванията за качество. Всички необходими настройки или корекции се правят на този етап.
- Доставка и монтаж:След като подвижният подемник за лодки премине всички проверки и тестове, той е подготвен за изпращане до местоположението на клиента. При пристигането се монтира и пуска в експлоатация от обучени техници. Монтажът може да включва закотвяне на подемника към подходяща основа или гарантиране, че е готов за работа върху различни видове повърхности.

Изглед на работилница
Компанията е инсталирала интелигентна платформа за управление на оборудването и е инсталирала 310 комплекта (комплекти) манипулационни и заваръчни роботи. След завършването на плана ще има повече от 500 комплекта (комплекти), а степента на свързване на оборудването в мрежа ще достигне 95%. Пуснати са в експлоатация 32 заваръчни линии, планира се да бъдат инсталирани 50, а степента на автоматизация на цялата продуктова линия е достигнала 85%.





Популярни тагове: мобилен подемник за лодки, Китай производители на мобилни подемници за лодки, доставчици, фабрика
Един чифт
Корабостроителни портални крановеСледваща
Козлов кран с гумени гумиМоже да харесаш също
Изпрати запитване























